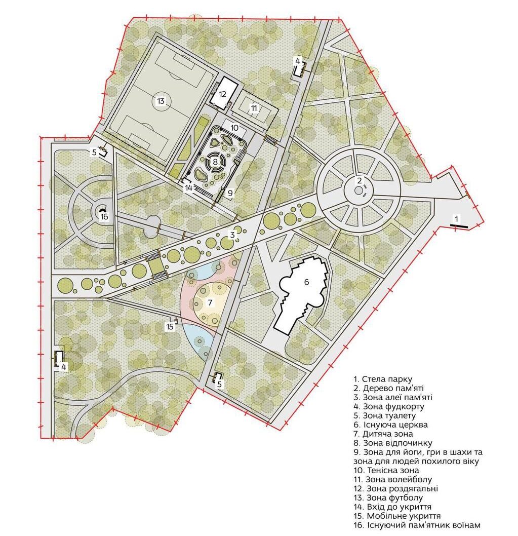
У Запоріжжі планують реконструкцію парку Металургів у Дніпровському районі. Нову інфраструктуру розбудують навколо меморіалу «Дерево пам’яті». Про це повідомили у Запорізькій міськраді.

Тільки корисні та достовірні новини! Підписуйтесь на telegram-канал «Відбудова. Онлайн»!

За останніми напрацюваннями, у парку планують провести масштабне озеленення:

  • висадити 150 дерев;
  • збільшити площу газонів та різнотрав’я;
  • скоротити площу бетону вдвічі – до 190 квадратних метрів.
У Запоріжжі оновлять парк Металургів: як він виглядатиме
Як виглядатиме парк після реконструкції. Ескіз: Запорізька міськрада.

Також у парку побудують дві дитячі та дві ігрові зони, зону відпочинку та простір для старшого покоління. Для безпеки встановлять два укриття.

Крім того, проєкт реконструкції буде інклюзивним – із тактильною плиткою, пандусами та майданчиками, доступними для людей з інвалідністю.

У Запоріжжі оновлять парк Металургів: як він виглядатиме
План-схема парку.

Раніше ми розповідали, що КП «Титан» за 1 млн грн замовило проєктно-кошторисну документацію для майбутньої реконструкції парку Металургів.

Нагадаємо, у жовтні 2024 року в парку Металургів встановили «Дерево пам’яті». Ця інсталяція стала першим елементом меморіального комплексу. У парку обіцяли покращити інфраструктуру, встановити нові елементи благоустрою та зробити територію інклюзивною.

Авторка: Таїсія Рогожина

Завантажити ще...